前 言
隨著改革開放及國民經濟的快速發展,國內石材http://www.stonebuy.com/干掛、室內干粘工法在國際上屬于生產和使用大國,為了追求建筑物的完美、安全、健康、節能、環保、自然和諧等,越來越多的裝飾材料選用天然裝飾石板、微晶石、合成石及各種復合裝飾板作為建筑物內外飾面材料。據業內相關人士統計,僅天然石材http://www.stonebuy.com/作為飾面裝飾材料一項,2004年在我國使用了約1.6億㎡,約占世界石材http://www.stonebuy.com/裝飾板材年產量的17%左右,按20%用于內外墻面計算約3200萬㎡,石材http://www.stonebuy.com/干掛件的用量按6套/㎡來講,年用量約1.92億套,石材http://www.stonebuy.com/干掛膠按8kg/㎡計算,年用量約2000噸左右,石材http://www.stonebuy.com/硅酮密封膠的年用量約6400萬支(硬支),并且石材http://www.stonebuy.com/干掛工程在我國呈現上升趨勢。
所以,筆者呼吁各相關單位、設計院、施工單位、材料生產企業http://www.stonebuy.com/enterprise/及質量技術監督單位應重視工程質量,各盡其責,把好每個環節關鍵程序的關。
一、 應依據相關標準規范實施
1.《建筑幕墻》(JGJ3035-1996)
2.《金屬與石材http://www.stonebuy.com/幕墻工程技術規范》(JGJ133-2001)
3.《干掛石材http://www.stonebuy.com/幕墻用環氧膠粘劑》(JC887-2001)
4.《建筑幕墻工程質量檢測標準》(JGJ/T139-2001)
5.《建筑幕墻質量驗收標準》(GB50210)
6.《高層民用建筑設計防火規范》(GB50045-95)
7.《建筑幕墻抗雷性能震動臺試驗方法》(GB/T1857)
8.《建筑幕墻物理性能分析》(GB/T18/15225)
9.《建筑幕墻風后變形性能測試方法》(GB/15226)
10.《建筑幕墻雨水滲透性能測試方法》(GB/15228)
11.《建筑幕墻空氣滲透性能測試方法》(GB/15227)
12.《天然石材http://www.stonebuy.com/產品http://www.stonebuy.com/sample/放射分類控制標準》(JC158-1993)
13.《干掛飾面石材http://www.stonebuy.com/及其金屬掛件》(報批稿)(JC830.1-830.2)
14.《天然飾面石材http://www.stonebuy.com/實驗方法》(GB/T9966.1-9966.8-2001)
15.《天然花崗石建筑板材》(GB/T18601-2001)
16.《建筑幕墻平面內變形檢測方法》(GB/T18250)
17.《建筑用硅酮結構密封膠》(GB/16776-2003)
18.《建筑裝飾用天然石材http://www.stonebuy.com/防護劑》(報批稿)
二、設計方案應明確
由于石材http://www.stonebuy.com/幕墻在建筑物中屬裝飾類,國家、行業相關標準還沒有出臺,大部分設計單位給出的圖紙節點及用料不是很明確,這樣給幕墻施工單位深化設計帶來不少問題。在石材http://www.stonebuy.com/干掛工程設計中,因缺少相關規范和技術信息資料,許多先進的掛件及工藝在參考和設計采納過程中無法應用,所以,在下面根據相關的標準為設計師提供粗淺的認識。詳見下圖。
T型掛件
背栓式掛件
R型掛件
SE型掛件
三、 樹立一個完善與施工管理機制
1.組織與計劃管理
裝飾工程項目接標后,按項目施工技術性質組織項目部,建立項目組織機構,并對管理人員及施工人員實施進場前的集中培訓、熟悉圖紙及技術特點、詳細研究施工管理方案、熟悉質量標準規范、確立施工計劃等。
項目部首先要確定項目經理(建造師)。項目經理(建造師)是企業http://www.stonebuy.com/enterprise/法人委托的代表,又是相對獨立的組織領導,必須具有一定的專業理論和實踐經驗,愛崗敬業的職業道德及組織能力、協調能力、應變能力,同時要求理論和實踐兼能、技術和經濟兼通、管理和組織兼行的復合型人才。應具備以下幾方面的條件:
(1)能掌握和運用有關的標準、規范。如:建筑裝飾施工及驗收規范;建筑分項工程工藝標準;工程檢驗詳定標準和檢驗方法、檢測手段;安全技術措施及有關安全;防火規定;崗位責任制及其它各項科學管理制度。
(2)應知應會的有關技能和知識有:看施工圖紙(含效果圖);找平放線(含坐標、標高及造型實樣放線);計算工程質量按定額進行活動物化勞動分析;編制施工設計;填寫施工任務書和限額領料卡(單);辦理各種核定簽證手續(含工程索賠);進行技術安全防火交底(進行安全教育);電腦操作和英語。
(3)有一定的組織能力和協調能力,如核查有關的圖紙、材料和特殊材料、有關的機械http://www.stonebuy.com/machine/設備及工具、內外預制加工成品、半成品及部件;組織協調工種之間的配合與搭接、裝飾與土建、安裝工程和工序銜接、勞動和特殊勞動力等。
(4)有一定的施工技術知識、經濟管理知識、法律知識。
(5)對全國質量管理與國際質量認證貫徹工作(國際標準規范)和全球一體化掛鉤。項目經理(建造師)的管理目標值:①工程質量含技術資料;②建設速度;③成本消耗。
項目經理(建造師)在以下各階段中的主要管理內容:
計劃階段:回頭看,找出問題所在;找特點,進行因果分析;靠群眾,訂出切實措施;定標準,找出管理目標。
實施階段:抓自檢,進行質量控制;建檔案,積累控制數據;畫圖表,觀察質量波動;訂管點,把住關鍵工序。
檢查階段:搞檢查,分析對比各項措施。
處理階段:作總結,以利今后工作。
(6)項目經理(建造師)應做出企業http://www.stonebuy.com/enterprise/經濟效益(稅后利潤情況)、企業http://www.stonebuy.com/enterprise/社會效益(信譽)分析。
以上幾個要點是項目經理(建造師)應具有的基本素質要求,具有了德才兼備、經驗豐富、敢于創新的條件,才能承擔項目經理(建造師)的職責和權利。總之,知識在經濟過程中起著關鍵的作用,擁有更多管理知識的人才將會創造更高的價值,企業http://www.stonebuy.com/enterprise/就會是市場http://www.stonebuy.com/enterprise/FuJian/QuanZhouShi.html的贏家,國家將會得到更快的發展。
2.石材http://www.stonebuy.com/干掛材料的選擇
(1)進場準備:辦公、食宿、材料等臨時用場所的搭設和水路、電源的提供,為進駐做好后勤保障工作。
(2)技術準備:根據所提供的設計方案組織設計部和項目部,在原方案的基礎上進行詳細的工程設計和組織計劃。
(3)材料準備:按設計選定的材料和設計外零配件材料由項目部出具材料統籌單,物資部統一采購。在選材過程中按照標準規范的要求嚴格把關,必須對每一項所需材料進行嚴格的審核,不合格的堅決不允許入場,合格產品http://www.stonebuy.com/sample/在入場前均需提交產品http://www.stonebuy.com/sample/合格證、質量保證單、國家檢測部門出具的檢測報告、產品http://www.stonebuy.com/sample/說明書以及材料供貨方營業執照等相關材料證書,實行專人負責制。
石材http://www.stonebuy.com/:選用石材http://www.stonebuy.com/,應符合國家標準《天然花崗石建筑板材》(GB/18601)、《天然石材http://www.stonebuy.com/產品http://www.stonebuy.com/sample/放射分類控制標準》(JC158-1993)或《干掛飾面石材http://www.stonebuy.com/及其金屬掛件》報批稿的要求。天然石材http://www.stonebuy.com/存在色差問題,安裝過程中,同等規格的飾面板,應由淺入深編排過度法。
金屬材料:所選用的金屬材料符合行業標準《金屬與石材http://www.stonebuy.com/幕墻工程技術規范》(JGJ133-2001)或《干掛飾面石材http://www.stonebuy.com/及其金屬掛件》報批稿的規定。
預埋件:受力預埋件的錨板應采用Q235等級B的鋼材,錨筋應采用二級鋼筋。
石材http://www.stonebuy.com/幕墻掛件:應采用國標鋁矽鎂合金SE型和背掛式或國標304不銹鋼背栓后切式掛件,符合現行行業標準《金屬與石材http://www.stonebuy.com/幕墻工程技術規范》(JGJ133-2001)的要求。
北京市國家安全局科研所綜合樓工程選用鋁矽鎂合金SE小單元式石材http://www.stonebuy.com/幕墻掛件是參考上海(A類地區)某工程高度為100m的石材http://www.stonebuy.com/幕墻的強度設計而定的,其實測值高于標準(設計)值3倍以上。北京為B類地區,完全符合標準設計值條件,同時也為在都市工作和生活的我們這一代人和后人的安全而考慮,經過論證確定,選用“愛樂貼”牌鋁矽鎂合金SE小單元式石材http://www.stonebuy.com/幕墻掛件,實施該工程的外墻裝飾施工。這是一種新型的工藝,已進入國家標準圖集和行業標準規范。
連接螺栓:在幕墻鋼結構與砼體結構連接預埋件漏放、偏差設計位置太遠、設計變更等時采用高強化學錨栓連接。化學錨栓螺桿材質為A3鍍鋅鋼。
幕墻鋼結構與掛件主板連接采用國標馬車螺絲。

所選用主龍骨、次龍骨等金屬材料均要進行防腐處理。
石材http://www.stonebuy.com/密封膠一定選用脫硅油石材http://www.stonebuy.com/專用膠。
石材http://www.stonebuy.com/干掛膠:干掛膠的選用其性能應符合行業標準《干掛石材http://www.stonebuy.com/幕墻用環氧膠粘劑》(JC887-2001)的要求,具有國家檢測部門出具的檢測報告、保質期限的質量證書及證明無污染的實驗報告。槽幾處的入槽填充膠要在足夠的承載力和彈性不宜過于脆硬。
3.施工工藝流程
施工人員進場——定位放線——復檢預埋件——偏差修正處理——基層處理——安裝“L”型角板——固定主龍骨——安裝次龍骨——避雷系統安裝——固定掛件主板——石材http://www.stonebuy.com/安裝就位——打膠勾縫——清理——自檢——成品保護——驗收。
小單元式石材http://www.stonebuy.com/幕墻,即在工廠加工程度最高的一種類型幕墻,將石材http://www.stonebuy.com/面板和石材http://www.stonebuy.com/掛件在工廠加工好,形成單元組合體,運至工地直接固定在主體結構與次龍骨連接的掛件主板上。
4.施工管理措施
好的計劃必須配備切實可行的管理措施才能實現,而安全施工、文明施工則是工程當中不可忽視的重要環節,只有確立相應的管理制度措施,才能保證工程質量。我們既要強化安全管理環節,也要把安全管理同經濟管理、行政管理等有機地結合起來,從而保障整個幕墻的施工管理。相應的管理制度有:
(1)生產及文明施工措施;
(2)現場文明市場http://www.stonebuy.com/enterprise/FuJian/QuanZhouShi.html管理制度;
(3)防火安全制度;
(4)物資采購及保管制度;
(5)工程施工進度計劃及保證措施;
(6)產品http://www.stonebuy.com/sample/防護措施;
(7)項目經理(建造師)及有關人員崗位責任制度;
(8)工程施工技術保證措施;
(9)工程施工質量保證措施;
(10)施工機械http://www.stonebuy.com/machine/設備保證及管理措施;
(11)現場施工原始記錄檔案管理制度;
(12)工程施工注意事項。
施工質量控制目標:工程質量合格,無安全事故,無質量事故。
目前諸多的石材http://www.stonebuy.com/幕墻,其實是屬于干掛石材http://www.stonebuy.com/,并非真正意義上的幕墻。干掛石材http://www.stonebuy.com/工法各異,有針銷式、縫掛式(傳統工法已被限制)、背掛式、背栓式、SE型等,技術特性各有千秋,為石材http://www.stonebuy.com/干掛的發展和石材http://www.stonebuy.com/幕墻的進步奠定了基礎,提供了可參考的依據。而真正意義上的石材http://www.stonebuy.com/幕墻應該是可移動的、可拆裝式的。小單元式石材http://www.stonebuy.com/幕墻在國外已大量采用,而在國內尚屬新興類型。建筑幕墻技術要與時俱進,“開放與交流、舒適與自然、環保與節能”的建筑原則,將促使各種新的幕墻不斷出現。
小單元式石材http://www.stonebuy.com/幕墻正在跟蹤國際前沿方向,開展各種高性能的新型節能性、環保性、智能化幕墻技術的研發工作。建筑幕墻行業的科學技術、科學生產、科學管理是一個新興的課題。在此簡單介紹小單元式石材http://www.stonebuy.com/幕墻工程施工中的一些拙見,意與行業同仁共同探討、研究,使小單元式石材http://www.stonebuy.com/幕墻生產施工技術及管理更具科學化、人性化、規范化,為行業的發展、社會的進步寄予創造,具有巨大的意義。
四、 石材http://www.stonebuy.com/干掛膠在幕墻干掛工程中的重要作用
石材http://www.stonebuy.com/干掛膠在幕墻干掛工程中起到重要的粘接作用,它的好壞也直接影響了工程的整體質量。
國家文明規定,對建筑工程實施“終身負責制”,但是不符合施工規范的現象普遍發生。我們認為,長期以來,在石材http://www.stonebuy.com/幕墻干掛施工的過程中,一直錯誤沿用云石膠粘接,用它來代替石材http://www.stonebuy.com/干掛膠是一種不科學的而且很危險的做法。云石膠未經過脫油處理,容易將油滲透進石材http://www.stonebuy.com/,造成石材http://www.stonebuy.com/污染,無法清理,影響石材http://www.stonebuy.com/的美觀,而且云石膠受氣溫的影響變化比較大,不適于在溫度較低的條件下施工操作,其粘接強度弱于石材http://www.stonebuy.com/干掛膠很多倍,而且怕潮濕、不耐高溫、易風化,剪力不夠,尤其用于潮濕和陽光無照射的墻體,使用壽命更短,更沒有安全保障。在華夏大地石材http://www.stonebuy.com/幕墻干掛工程快速發展的今天,我們的頭頂上到底會懸掛著多少顆“定時炸彈”?一旦發生“爆炸”,后果將不堪設想。所以呼吁,國家建設部施工質量監督管理部門及行業相關部門予以高度重視,各施工單位應嚴格按照國家和行業的標準規范及相關政策法規進行施工,為保障社會的利益、人民安全,防患與未然。
我國于2001年出臺了《干掛石材http://www.stonebuy.com/幕墻用環氧膠粘劑》(JC887-2001)規范,根據石材http://www.stonebuy.com/幕墻的特點規定了6條強制性指標,對建筑工程及裝飾工程部門的用膠規定了明確的質量指標。
這對于石材http://www.stonebuy.com/幕墻干掛行業的發展是一個有利的舉措,使施工單位在施工過程中有理可依、有據可考,為今后石材http://www.stonebuy.com/幕墻施工走入正軌指明了方向。石材http://www.stonebuy.com/干掛膠在石材http://www.stonebuy.com/幕墻干掛施工工藝中以四兩撥千斤的力量將一塊塊幾十公斤重的石材http://www.stonebuy.com/粘接在掛件上,干掛膠質量的好壞直接關系著石材http://www.stonebuy.com/的安裝質量和效果,所以我們應遵從實事求是的原則,在石材http://www.stonebuy.com/幕墻干掛施工的過程中,采用環氧樹脂石材http://www.stonebuy.com/幕墻干掛膠,其性能特點是防腐蝕、耐高溫、抗老化、強度高、牢固性好;在石材http://www.stonebuy.com/幕墻干掛施工的過程中,施工人員采用云石膠,因為云石膠固化的時間短,為了安裝過程中使用“方便”,卻暗藏安全隱患,這是對安全不負責的做法。
云石膠與石材http://www.stonebuy.com/干掛膠的性能特點不同,所以它們的用途也不同。云石膠用于石材http://www.stonebuy.com/與石材http://www.stonebuy.com/的粘接和石材http://www.stonebuy.com/的修補,它的成分是不飽和聚脂,屬于鋼性結合,用于石材http://www.stonebuy.com/干掛工程中,其優勢是固化的時間便于調節,但由于不飽和聚脂與固化劑比例容易失調,導致剪力不夠、應力大,在溫差和震動條件的作用下產生的位移比較大,容易開裂;而石材http://www.stonebuy.com/干掛膠是用于石材http://www.stonebuy.com/與金屬粘接專用的專用膠,其成分是環氧樹脂,由A、B組合使用,調配簡單明確,屬于柔性結合,且不滲油,無污染石材http://www.stonebuy.com/,抗震、扭曲性能強,應力小,粘接強度不受影響,在溫差和震動條件的作用下,伸縮、沉降產生的位移較小。國家行業標準即將出臺云石膠的使用規范。利于我們在云石膠和石材http://www.stonebuy.com/干掛膠的用途上明確區分,這樣一來使我們改變了長期以來沿用的錯誤使用方法,保證了石材http://www.stonebuy.com/幕墻干掛工程的質量和安全,利國利民。
石材http://www.stonebuy.com/幕墻用硅酮耐候密封膠
石材http://www.stonebuy.com/幕墻所用的石材http://www.stonebuy.com/是天然材料,不同產地不同品種的石材http://www.stonebuy.com/在成分、結晶形態、微觀結構上存在很大差別,石材http://www.stonebuy.com/又是多孔性材料(如大理石、石灰石、砂石、花崗石),易受污染,且污染后難于清洗,以前的實踐證明,無論是硅酮類、聚氨類或聚硫類密封膠對石材http://www.stonebuy.com/均有不同程度的污染,使石材http://www.stonebuy.com/建筑外觀極為難看。對石材http://www.stonebuy.com/污染的原因是密封膠中的小分子

如增塑劑等非反應性物質從膠中滲出,滲入到石材http://www.stonebuy.com/的孔隙中,使石材http://www.stonebuy.com/表面出現油污及吸灰。密封膠中的增塑劑是用于改善密封膠的彈性及硬度的,為得到高質量的密封膠,絕大多數密封膠制造商生產的密封膠中均含有小分子類增塑劑。近年來隨著新技術及新材料的應用,一些密封劑生產商可以生產出無增塑劑并且性能優異的密封膠。
酸性密封膠不宜用于石材http://www.stonebuy.com/的接縫密封,因為許多石材http://www.stonebuy.com/含有碳酸鹽及金屬氧化物,與膠中的酸起反應,易出現粘接性的問題,特別是浸水后粘接性差的問題。石材http://www.stonebuy.com/的污染問題還有其他多種因素造成,如底漆的使用、石材http://www.stonebuy.com/加工過程中使用的助劑、密封膠表面吸附的油污及灰塵、密封膠老化降解等因素均可能會造成對石材http://www.stonebuy.com/的污染。用戶在選用石材http://www.stonebuy.com/及密封膠時應做污染性測試,判斷是否會產生污染現象。目前采用的測試污染性的方法為美國ASTM1248-98《用于多孔性基材的接縫密封膠污染性標準試驗方法》。目前正在制定的石材http://www.stonebuy.com/用密封膠的行業標準也是用該方法測定污染性。通常用密封膠生產廠或中立的檢測機構進行污染性測試。
另外需指出的是ASTM1248-98是評價由于密封膠內部物質滲出在多孔性基材上產生早期污染的可能性,由于這是一個加速試驗,無法預測實驗的密封膠長期使用使多孔性基材污染,如變色的可能性;也無法判斷實際應用中因密封膠老化降解、吸收外界的油污及灰塵而造成污染的可能性。選用通過ASTM1248測試的密封膠可以大大降低出現污染的可能性。選擇硅酮類石材http://www.stonebuy.com/用密封膠比較安全,因為硅酮類密封膠是目前已有的密封膠中耐老化性最好的,不會因長期使用降解而污染石材http://www.stonebuy.com/。另外,一些石材http://www.stonebuy.com/助劑的使用也可以降低石材http://www.stonebuy.com/受污染的可能性。
五、室內用環氧膠粘劑的使用方法
在建筑裝飾業快速發展的今天,建筑門窗幕墻行業取得可喜的成就。我國的住宅建設逐步向產業化、商業化、智能化發展,越來越注重現代居室藝術化的氛圍。門窗幕墻的變遷在裝飾行業日益繁榮,建筑物的玻璃門窗由過去的單一式向穿透式、節能式、智能式及通風式等趨勢發展。建筑物的內墻裝飾由賓館、商廈、寫字樓、會議廳等公共場所現已步入家居裝飾,并逐漸成為家裝行業的一大亮點。
眾所周知,建筑物外墻面裝飾花樣繁多,給城市的面貌增添了不少色彩,成為了城市環境的一道風景線。而內墻,尤其是家居內墻的裝飾,長期以來沿用涂料、壁紙、內墻磚等作為裝飾主材料,但這些材料在使用過程存在著諸多的弊端,如:涂料干裂、脫皮;壁紙的清潔、皺裂;墻磚釉面脫釉,變色斷裂以及幾種材料的吸塵、滲油等現象,給居室的美觀及經濟都帶來了負面的影響。故建議采用“干掛石材http://www.stonebuy.com/幕墻用環氧膠粘劑”干粘石材http://www.stonebuy.com/或玻化磚作為新型居室內墻裝飾,石材http://www.stonebuy.com/、瓷磚的各式紋路別具風格,將成為居室內的新景象。干粘法既不占據空間,又給日后的維護保養帶來便利。
在材料的選用上,要注意是否符合現行的國家和行業標準,石材http://www.stonebuy.com/、瓷磚的放射性是否達標。最為關鍵的則是干粘膠的選用,此產品http://www.stonebuy.com/sample/應符合中華人民共和國建材行業標準《干掛石材http://www.stonebuy.com/幕墻用環氧膠粘劑》(JC887-2001)的要求,符合此規范要求的產品http://www.stonebuy.com/sample/是無毒、無腐蝕性的改良性環氧樹脂聚合物產品http://www.stonebuy.com/sample/,對人體無傷害,是一種高強持久性粘結強度的工程結構粘合劑膠。具有韌性和伸縮性的特點,固化后的防水、防潮性能極佳,其抗老化、抗擠壓、抗沖擊、抗拉、抗震及耐高低溫等物理性能較強。在施工過程中對環境無污染、綜合造價低,同時可減少施工當中的運輸、清理多余雜物等程序和費用,且達到了真正意義上的省錢、省力、提高施工速度等功效。因固化速度快,在短時間內初步固化能快速定位粘結。適用飾面掛裝材料包括:天然石材http://www.stonebuy.com/、合成石材http://www.stonebuy.com/、陶瓷玻化磚、微晶石、混凝土、木板、金屬、玻璃鋼等常用硬質材料中任何兩種物質之間的粘結安裝(包括懸掛安裝)。
在施工過程中,安裝前要進行表面處理,粘結物表面應保持清潔干燥,無塵無油,牢固不疏松;金屬表面無油漆、無銹跡;混凝土表面的浮松物等有礙于充分粘結的必須清理干凈;石材http://www.stonebuy.com/、陶瓷、微晶石、金屬等材料的粘結面過于光滑時要進行打磨處理,如此粘結效果更好。
膠粘劑的攪拌方法:將A、B兩組膠粘劑按使用方法比重2:1的比例取出后放于平滑的板面(石材http://www.stonebuy.com/、金屬、瓷磚等),用小鏟將A、B組膠粘劑充分攪拌,達到均勻色澤一致(注意翻底)即可使用。
調和好的膠粘劑要在固化期內使用,超過有效時間絕對不能使用(根據氣溫條件進行,氣溫高時固化時間短,氣溫越高固化越快,反之則時間較長)。已粘結的物件超過固化時間后不能再做移動,如需移動,則需要重新調和粘結。已固化的膠粘劑已不能再使用,確保質量,不能遺留安全隱患。
由建設部建筑門窗幕墻設計研究所設計的北京某工程采用的“愛樂貼牌”石材http://www.stonebuy.com/幕墻用環氧干掛膠通過國家建筑材料測試中心檢測,并經過實踐,各項性能值均符合標準要求。
墻面裝飾用環氧干掛膠直接粘結法,適用于安裝高度小于8m,且墻體結構強度較好,飾面與墻面凈空距離詳見圖
內墻干粘法示意圖


中方法掛裝。
墻面裝飾用金屬(鋁矽鎂合金)掛件錨定法,適用于高層飾面掛裝,或石材http://www.stonebuy.com/等飾面與墻面凈空距離較大、舊墻體改造裝修或墻體表面材質疏松、墻體結構強度很低時采用。
室內裝飾用石材http://www.stonebuy.com/、瓷磚等鑲貼的常規做法,一般采用水泥砂漿粘貼。而大規格材料如采用濕貼則給施工帶來較大難度,且很難確保施工質量。筆者介紹的用干掛膠粘劑干粘法施工可滿足當前施工設計的需要,裝飾效果簡潔、明快、大方,并且安裝方便,快捷、省工、省時、省料,大大降低綜合成本并具有環保性,為室內裝飾開辟了一種新的技術和工法。
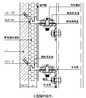
六、 石材http://www.stonebuy.com/幕墻隔熱保溫及節能
建筑物采用外墻外保溫是較為合理的節能形式,為提高工效,文明施工全面實行干作業施工法,將保溫材料在施工過程與裝飾合一的構件,實現保溫裝飾一體化、制品構造化、生產工廠化、現場裝配化,這是外墻外保溫行業發展的趨勢,也是我們努力的方向。
在墻體結構龍骨部位采用硅鈣板、膨脹聚苯板、擠塑聚苯板、哄硬泡聚氨酯等密縫,導熱系數≤0.042w/m2.k;憎水率≥98%的擺錘法,用帶墊片的硅鈣板固定于墻體。聚苯板等可用聚合物砂漿或環氧膠粘劑粘貼。石材http://www.stonebuy.com/縫間可選用先將高效發泡劑置入縫間,再用石材http://www.stonebuy.com/填縫膠密封。
S·E型小單元式石材http://www.stonebuy.com/幕墻先在工廠將S和E型件或R型固定在板材上下,工地只需在次龍骨上安裝主桿件,然后將板材上已粘結好的S和E型件或R型與主桿件對接即可。安裝方便,特別是維修方便,每塊板材可以任意更換。石材http://www.stonebuy.com/對接縫可以不填充,但保溫層外面宜噴一層聚合物水泥界面劑,使保溫更完善,將掛件均進行隔熱、保溫處理,見示意圖。
七、 石材http://www.stonebuy.com/防護劑的選用及使用方法
裝飾石材http://www.stonebuy.com/在安裝前使用防護劑進行防護,直接目的是提高石材http://www.stonebuy.com/本身的抗污能力,防止在安裝中和使用中出現污染。正確的選擇和正確的使用防護劑是可以達到這個目的的。但是往往由于對石材http://www.stonebuy.com/防護劑的認識不足,沒有正確的選擇和使用石材http://www.stonebuy.com/防護劑反而造成一些嚴重的甚至是不可逆的污染,因此石材http://www.stonebuy.com/防護劑的選擇和使用就引起石材http://www.stonebuy.com/使用者的重視。
石材http://www.stonebuy.com/防護劑的選擇
對于選擇什么樣的防護劑,應堅持四個具體的原則:即具體的石材http://www.stonebuy.com/、具體的使用方位和安裝方法、具體要防止的污染源、選擇具體的防護劑。

SE型隔熱掛件

R型隔熱掛件
1.具體的石材http://www.stonebuy.com/:可以按三個方面考慮,顏色(深、淺、白等)、外表(光面、毛面)和石材http://www.stonebuy.com/本身的含鐵量高底等。
2.具體的使用方位和方法:應按墻面、地面、干掛、濕鋪、衛生間、灶臺等具體的情況區分。
3.具體要防止的污染源:可按防止水泥漿的返滲,防止使用中的酸雨侵蝕,防止日常的水性污染及防止油污等方面因素考慮。
4.具體的防護劑選定:要根據以上三個方面的因素,選擇水性、溶劑型、飾面型、底面型或特殊型防護劑。
例一:光面山東白麻(含鐵量較高或經酸洗脫色的)用于地面濕鋪,要防止水泥漿的返滲和日常使用中的水性污染。選擇:CHJ石材http://www.stonebuy.com/滲透型防護劑單項防護(也可加做CHJ石材http://www.stonebuy.com/底面防護劑、以提高粘貼力);
例二:福建http://www.zongyi.com.cn/603花崗巖燒毛(含鐵量不高,未經酸洗脫色)用于外墻干掛、要防止施工中及以后的水性及酸雨污染。選擇CHJ硅氧水性防護劑或CHJ多功能水性防護劑。
例三:山東櫻花紅50mm厚燒毛及光面混合拼圖,用于外廣場地面濕鋪,要防止施工中的水泥污染和日后水性白樺及油污,并有利于日常清洗。選用CHJ硅氧化水性防護劑或CHJ多功能水性防護劑和CHJ8765復合型防護劑復合做法。并且在鋪裝后的水泥縫上加做水性防護劑,以防止水溶性水泥白樺出現。
例四:光面西班牙米黃有背網,用于室內墻濕貼,要防止施工中水泥漿返滲和日后利于清潔。選用CHJ石材http://www.stonebuy.com/滲透型防護劑做光面,CHJ石材http://www.stonebuy.com/底面防護劑做背面。(可加強網面黏結力,防止空鼓和提高抗水壓能力)。
總之,石材http://www.stonebuy.com/防護劑的選擇很重要,為使石材http://www.stonebuy.com/安裝和使用中盡量少出問題,應選擇品牌可信度高的防護劑。不要選擇無品質可靠性、無檢驗連續性的產品http://www.stonebuy.com/sample/,在選擇時應向'國家建筑材料工業石材http://www.stonebuy.com/質量監督檢驗測試中心'查詢一下該品牌產品http://www.stonebuy.com/sample/的檢驗情況,以防假冒產品http://www.stonebuy.com/sample/,給使用者造成不必要的損失。
石材http://www.stonebuy.com/防護劑的使用
當選擇好適合的石材http://www.stonebuy.com/防護劑后,正確的使用方法是確保防護效果的關鍵,萬萬不可掉以輕心。不同的石材http://www.stonebuy.com/防護劑在使用方法上有共同點也有不同之處,先談共同點。
(1)要求石材http://www.stonebuy.com/干凈、干燥、石材http://www.stonebuy.com/表面的污漬會在涂刷防護劑的過程中被帶進石材http://www.stonebuy.com/內部,而引起危害或污染,清除起來很困難,因此石材http://www.stonebuy.com/表面的銹漬、油漬、色素、塵土都要在涂刷防護劑前清理掉,最好是在切割后馬上沖洗干凈,再晾干待用。石材http://www.stonebuy.com/的干燥也很重要,所謂干燥基本上干燥(石材http://www.stonebuy.com/看起來不濕)即可,并不是要求人工烘干。過濕的石材http://www.stonebuy.com/會影響石材http://www.stonebuy.com/防護劑的吸收或造成吸收不均勻,肯定會使石材http://www.stonebuy.com/防護質量下降,這一點在濕法鋪裝石材http://www.stonebuy.com/時尤為重要。
(2)用量和涂刷的遍數:不同密度的石材http://www.stonebuy.com/使用防護劑的量會不同,要求涂刷的遍數也不同,例如白沙米黃、燒毛花崗巖要求使用量大些,涂刷的遍數也應在兩遍以上,這類石材http://www.stonebuy.com/孔隙大,少量的、單遍涂刷防護劑不足以起到阻斷毛細現象、防止污染的目的。而一些密度較高,沒有高溫加工裂隙的石材http://www.stonebuy.com/相對石材http://www.stonebuy.com/防護劑的使用量會少一些。
(3)石材http://www.stonebuy.com/防護劑的養生:所謂養生就是讓涂刷過石材http://www.stonebuy.com/防護劑的石材http://www.stonebuy.com/在通風(夏天不要在陽光直射下)的情況下自然干燥。這個過程沒有完成時,石材http://www.stonebuy.com/不具備防污能力,因此養生時間和空氣流通是關鍵,一定要架空養生,養生時間一定要充足,一般來講石材http://www.stonebuy.com/防護劑要經過48小時甚至更長時間才能完成化學變化過程。溫度越低,養生時間應越長,以起到防護作用。從表面看一天或幾個小時石材http://www.stonebuy.com/就有了憎水(荷葉)現象,但這只是表面現象,在干掛石材http://www.stonebuy.com/時一般沒有影響,而在濕法安裝墻、地面時因石材http://www.stonebuy.com/防護劑還沒有充分起到阻斷毛細現象的作用,也就是說它的化學變化還沒有完成,那就一定會在堿性水泥漿的返滲中遭到破壞,從而產生水斑不干、返堿、返黃、返銹等一些嚴重甚至是不可逆的污染。涂刷防護劑后養生是石材http://www.stonebuy.com/防護的關鍵。這一點要引起使用者的高度重視--它是不以人的意志為轉移的化學變化過程。
不同類型石材http://www.stonebuy.com/防護劑有不同的使用特點
(1)水性防護劑,一般水性防護劑液體成堿性狀態的居多PH值一般在11左右,在涂刷時應嚴禁使用動物毛刷如豬毛刷、羊毛刷、排筆等工具,因為所有動力毛刷都是角質物,是蛋白質、氨基酸等的混合物,在堿性溶液中會被逐漸溶解、分解,一個是毛刷容易壞掉,一個是會大量的溶解在裝防護劑的容器里,使容器內的防護劑變質,輕則變黃、變黑或變稠,重則使防護劑失效,另外水性防護劑產生的表面憎水現象比較快、重涂性差,因此要在第一次浸進石材http://www.stonebuy.com/內足夠量的防護劑,基于以上原因水性防護劑應使用噴壺、毛巾、滾刷等工具。如有條件最好采用浸泡法,可以達到最佳效果。另外水性防護劑不宜在零度以下使用。
(2)溶劑型防護劑:這類防護劑特點和品質都可以有很多變化,而優質的滲透型防護劑應具有不改變石材http://www.stonebuy.com/顏色、浸潤重涂性好,抗水、抗油污能力強,在堿性溶液中阻斷毛細現象能力強,抗返滲能力高等諸多優點。(但因品質問題也可能會有許多弱點,如變色、抗返滲能力差等問題)在使用中應注意以下幾個方面:防火、通風是應引起極大重視的。在夏季高溫時使用如出現表面結溶劑珠現象時,應用毛巾擦勻、擦開。使用工具可以是毛刷等涂刷工具,但不可以使用塑料噴壺,因為防護劑的溶劑會溶解橡膠環使噴壺很快壞掉。這點與水性防護劑相反。
另外,在石材http://www.stonebuy.com/防護劑選擇和使用中還有兩點應該提出引起注意:一是防護劑的特性,要求使用者搞清楚后再大面積使用,例如:防油型的氟碳制劑在外墻干掛的膠縫處的使用,應在選擇前作好實驗,以免出現某些種類的嵌縫膠與石材http://www.stonebuy.com/粘結能力下降、開裂等現象。二是防護劑的使用應該列為一道工序,是不可以節約時間的,不能因為趕工期而縮短養護時間。以往的經驗提醒我們:要做石材http://www.stonebuy.com/防護,就認真做好,否則不如不做。
總 結
總而言之,集思廣益,共謀石材http://www.stonebuy.com/幕墻發展大計,由成長走向成熟。如今是科技時代,各行各業的技術發展日新月異,若仍以幾年前、乃至十幾年前的觀念恐怕不再適合21世紀的發展需求。無論是哪個行業,不管是什么專業,社會的方方面面無形中與我們每個人都存在著緊密的聯系,如果非要等到某一天石板從天而降的事故成為事實時再去研究一切隱患,恐怕已是“亡羊補牢”;如此,國家的發展得不到前進,民族的富強也無法實現。所以,建議業內人士予以高度重視,持續注視共同努力,使石材http://www.stonebuy.com/幕墻乃至整個行業領域健康的發展,給人民一座座環保、健康、安全的現代化建筑。
廣西白大理石,大理石地板磚, 大理石餐桌,白色大理石, 大理石桌面
河南芝麻灰,梨花白,梨花紅,珍珠灰,染黑板,染紅板,中華綠,芝麻白,
芭拉白、大白花(G439)、潮州紅、寶石藍、朝陽白,帝皇紅、粉紅麻、