
施工順序:
地面清理→水泥漿結合層→鋪貼石材http://www.stonebuy.com/ →養護→晶面處理
重點說明:
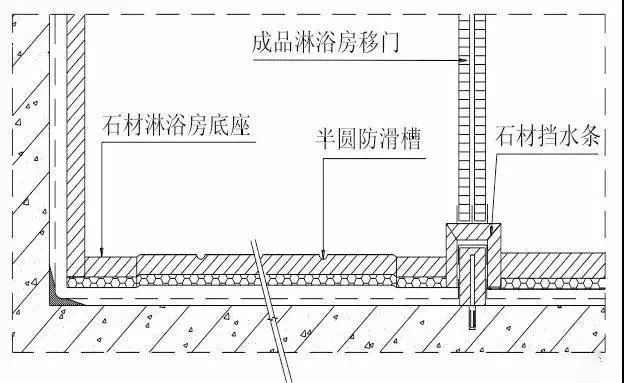
1、淋浴房地面鋪貼石材http://www.stonebuy.com/前須先作擋水檻,擋水檻完成面高度低于石材http://www.stonebuy.com/地面30mm, 擋水檻采用混凝土砂漿澆筑,擋水檻與地面接觸位置須作弧形翻邊。
2、 防水施工須先對檔水檻陰角處進行柔性防水處理,待檔水檻陰角防水干透后再進行大面防水施工。
3、 沐浴房門檻石材http://www.stonebuy.com/須采用濕鋪工藝進行鋪貼,預防淋浴用水落地后向外滲透。
施工圖片:

易縣紅、易縣黑、中國黑、蒙古黑、點灰麻、新芝麻黑,雞血紅、填
封開花、封開花廠家、灰麻、芝麻灰、紫羅蘭等路沿石、文化石、,
海南黑+黑洞石+安山巖+紅火山巖+火山巖