

梁上構架構造

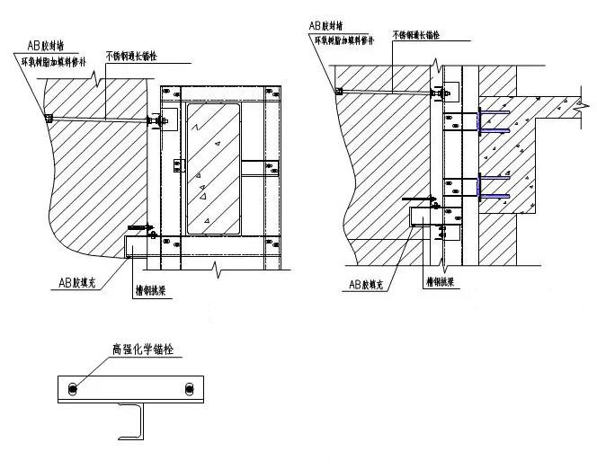
立柱與主體結構連接詳圖

橫梁與立柱連接詳圖

吊裝埋件

上部石材http://www.stonebuy.com/的就位錨栓

汽車吊石材http://www.stonebuy.com/吊裝

石材http://www.stonebuy.com/吊至立面相應位置

手動葫蘆進行調整


上部石材http://www.stonebuy.com/就位、固定圖

石材http://www.stonebuy.com/螺栓孔修補效果圖
黃金麻、隨州白麻、黃金鉆、白金鉆
咖啡鉆,新皇室啡,紫晶鉆,波斯金麻,細啡棕
文化石,天然文化石,水泥文化石,水泥側粘文化石,側粘文化石,墻石,