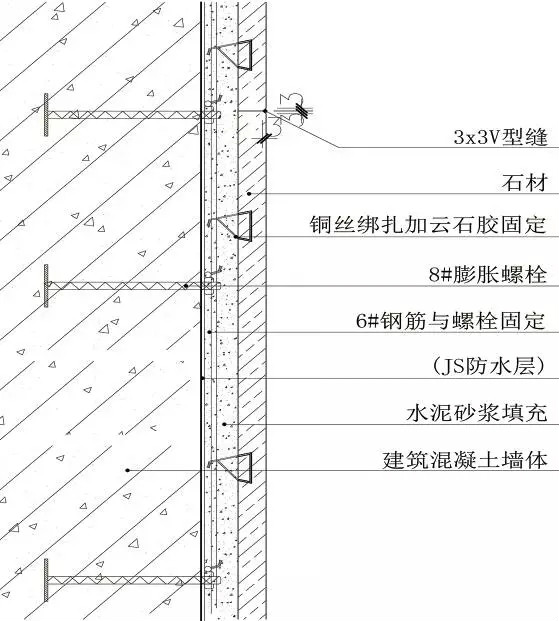
石材http://www.stonebuy.com/與混凝土墻相接三維示意圖:


工藝說明:
1.墻面做JS防水層;
2.選用石材http://www.stonebuy.com/18mm,均經過六面防護、晶面處理;
3.塑造石材http://www.stonebuy.com/造型,上下口做3mm倒角;
4.石材http://www.stonebuy.com/安裝前進行打眼,方便銅絲固定(上下共4個眼);
5.鋼筋與石材http://www.stonebuy.com/固定;
6.土建墻體固定膨脹螺栓;
7.鋼筋于螺栓固定,鋼筋成網狀;
8.銅絲栓綁與鋼筋網;
9.石材http://www.stonebuy.com/與墻體之間填充水泥砂漿,即灌漿。

中國紅, 滎經紅, 亞洲紅, 三合紅, 雅蒙黑, 紅砂巖, 紅木紋(水波紋
封開花、封開花廠家、灰麻、芝麻灰、紫羅蘭等路沿石、文化石、,
石材、云絲白麻、G603、火燒板、荔枝面